Контакты
Главная
Портфолио
Прайс
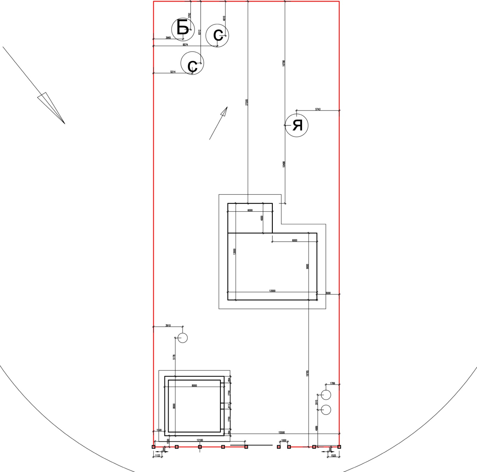
Урок "генплан. часть 2"
предназначен для тех, кто работает в Autocad.
построение генплана состоит из 2-х уроков
(обмерный план+генплан),
каждый из которых занимает 30 мин.
Купить
1
Стоимость 1500 руб.
2
Срок доступа к уроку 1 год
Галина Федорова
+7 (965) 686 81 60
Telegram
WhatsApp
Email
Галина Федорова
+7 (965) 686 81 60
Наверх
Галина Федорова
+7 (965) 686 81 60
Telegram
WhatsApp
Email
Галина Федорова
+7 (965) 686 81 60
Наверх
Email
Phone
Telegram
WhatsApp
Made on
Tilda